Шановні інвестори!
ПрАТ "Олімп" продовжує відновлення будинку №3 ЖК Північний.
Ведуться наступні будівельні роботи :
1. Завершено роботи по прибиранню сміття по квартирах на всіх поверхах.
2. Розпочато роботи по забезпеченню зберігання будинку в зимовий період : ведуться роботи по ремонту покрівель над вентиляційною камерою та ліфтових приміщень.
3. Проводяться роботи по відновленню пошкоджених плит перекриття і зовнішніх стін.
4. Продовжуються роботи по відновленню роботи ліфтів.
В нашем комплексе возводятся не только новостройки, но также торговые центры, магазин, различные развлекательные центры.
Выбирать такой комплекс определенно стоит. Это оптимальный выбор, который точно не разочарует.
В Чернигове началось строительство нового Спортивного комплекса. Находиться он будет в микрорайоне ЗАЗ (в квартале ул. Кольцевой и пр. Мира).Появление такого комплекса может заметно помочь развитию микрорайона ЗАЗ.
В основе проекта ЖК "СЕВЕРНЫЙ" лежит концепция "город в городе", что даёт возможность отделить территорию комплекса.
Кроме того, в каждом доме запланировано помещение консьерж.
В каждом доме находятся помещения социально-бытового назначения, которые в дальнейшем станут дополнение комплекса (аптеки, салоны красоты, спортивные залы и т.д.).
Также запланирована красивая зона благоустройства, которая отличается своей масштабностью и безопасностью.
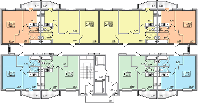
Для выбора интересующей квартиры необходимо кликнуть по ней на плане этажа. Данная опция показывает в каком статусе находиться квартира
Выберите этаж:
1234567891011121314151617
Для выбора интересующей квартиры необходимо кликнуть по ней на плане этажа. Данная опция показывает в каком статусе находиться квартира
Выберите этаж:
1234567891011121314151617
| Фундаменты | Устройство свайного поля с железобетонным ростверком | |
| Конструкция дома | Монолитный железобетон | |
| Фасад |
Штукатурка с покраской |
|
| Система утепления | Эффект «ТЕРМОДОМ». Утепление минеральной ватой толщиной не менее 120 мм согласно нормативной документации | |
| Кровля |
Плоска кровля выполнена современными гидроизоляционными материалами с дополнительным энергосберегающим эффектом |
|
| Современные лифты | Грузовой и грузопассажирский | |
| Окна | С энергосберегающим двойным стеклопакетом и немецкой фурнитурой |
Фотогалерея




Гарантии